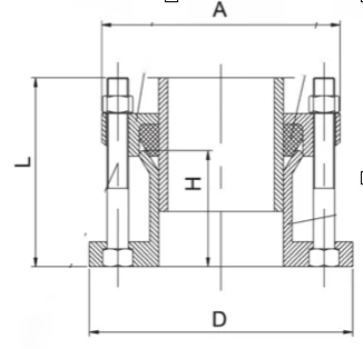
Universal Flange Adaptor

DN40 to DN600

PN10/16

Materials & Relevant Standards

  • END RING : DUCTILE IRON GGG-50
  • BODY : DUCTILE IRON GGG-50
  • GASKET : EPDM / NBR / SBR
  • BOLTS & NUTS : CARBON STEEL / SS304 / SS316
  • COATING : EPOXY coating.